“仿古”还是“西化”?——写在上海道教学院启用之前
摘要:
上海道教学院启用之际,关于学院发展方向的探讨引人注目,关于是否应走仿古路线还是西化路线,引发了广泛讨论,本文旨在探讨这一话题,分析学院如何在传承传统文化的同时,吸收西方先进理念,实... 上海道教学院启用之际,关于学院发展方向的探讨引人注目,关于是否应走仿古路线还是西化路线,引发了广泛讨论,本文旨在探讨这一话题,分析学院如何在传承传统文化的同时,吸收西方先进理念,实现融合创新,这一决策对于道教学院未来发展具有重要意义。
作者按:历时9年,位于闵行浦江召稼楼古镇一侧的上海道教学院新址即将于近日正式启用。这是目前第一座以当代建筑理念设计的道教学院,兹将设计理念简要概述如下。
引子
上海道教学院新址(异地重建的鹤坡观)位于浦江镇召稼楼古镇西侧,占地14亩,建筑面积13394平方米。2013年秋项目启动时,业主与我即达成“构建当代中国神圣空间”的共识。这座建筑,如同其未来的年轻使用者,不仅属于当下,更面向未来。换言之,我们无意打造一座“仿古”建筑,且这种创新也绝非“西化”。
上海道教学院山门(郑超/摄)
我并非是一位“业精于勤”的建筑师,但对神圣空间、仪式行为与山水场所的相互塑造关系始终怀有学术研究的兴趣。我深信,立足当下、面向未来的本土神圣空间设计,必植根于对传统空间的研究与认知。唯有把握其贯通古今的内在核心逻辑,才能摆脱“飞檐”“斗拱”等仿古桎梏,以建筑师的主观能动性,运用当代建筑材料、科学技术与审美进行设计。如此,项目的推进过程,也成了学术成长与设计思考不断深化、最终付诸实践的过程。
在此项目中,我的角色已超越传统建筑师的范畴:一方面将道家文化精义转译为建筑语言;另一方面,还参与设计了仪式空间的家具、陈设、器物乃至部分软装。详述这些细节需写一本书的体量,但在落成的前夕这一时刻,我在此仅想提炼出贯穿始终的四条线索,既为未来的参访者提供背景的理解,也算是我个人思考的阶段性总结。这四条线索分别为:场所精神、功能布局、建筑材料与形式、符号象征。
鹤坡:场所精神
“海为龙世界,云是鹤家乡”。古称“云间”的上海,曾是仙鹤云集的越冬之地。宝历元年(825年),白居易外放吴郡时所作“一双华亭鹤,数片太湖石”,便勾勒出彼时江南风物。华亭(今上海)所产的“华亭鹤”,自六朝起即为鹤中上品。上海古海滨滩涂有“三沙”之称——白沙、川沙、下沙。据宋人记载,下沙鹤坡村之鹤尤为上乘,故鹤坡又称“鹤窠”,下沙亦名“鹤沙”(参见图1)。下沙的鹤坡道院,也正始建于南宋咸淳年间(1265年—1274年),距今700余年。
图1.上海6000年海岸线变化(来源:网络)其中下沙曾是海岸线重要的聚落之一
中国传统文化中,仙鹤(丹顶鹤Grus japonensis)寓意深远:它们象征长寿(50-60年)、与天相通、品行高洁(喻君子)及盛世祥瑞。道教尤为尊崇仙鹤,奉道者不仅追求其品性与寿龄,更以“驾鹤升仙”为生命超越的象征。因此,“鹤”常代指奉道者——道士云集称“鹤会”,隐居则为“驻鹤”。
可见,鹤坡、鹤窠、鹤沙之名与道教渊源深厚。“鹤窠”即仙鹤育雏之所,恰与培育人才的学校功能相契,二者皆如道教“洞天”般,是孕育、选拔仙才的母性阈限空间(liminal space)。中国古代地理观认为,灵鹤栖居之地必是山水交融、饱含生命力的“钟灵毓秀”之所,即“福地”。东晋道经载,福地乃天地造化为奉道者所开辟的圣所,供其避难、耕织、隐修。栖居其间,既可避世纷扰,更能亲近蕴含“大道真气”的草木泉石,与之相融“合同”。
可见,“鹤坡”的地域历史与精神内核,与道教学院的功能存在着天然的内在契合。基于此,该项目的建筑空间设计,本质上是要重新构建出一处 “鹤沙福地” 、一方 “鹤窠洞天”。以我所在清华团队多年来对“洞天福地”的文化研究座位基础,“鹤坡”这一场所精神的确立,为未来的设计奠定了坚实立足点。
鹤坡观三清殿月台上的一对铜鹤(郑超/摄)
庙·学:功能布局
按东晋道经,“洞天”是尚未成仙的“地下主”受学之所,其仙官系统涵盖了教授、考校、授职等功能,俨然一座制度严密的道教大学。“福地”则为山水灵秀、可澄怀观道的隐修所。道教修行中,智识(intellectual)层面的“学”与具身(embodied)层面的“修”乃不可偏废的一体两面。其修行实践自创教即与仪式密不可分:既有外向集体的“斋”(如修斋、朝修),亦含内向个体的“心斋”。
因此,“洞天福地”式的道教学院,须在公共仪式、静修、教学及授度仪式等层面满足功能需求。道教建筑史上对此早有成熟传统:中古道观布局中,山门内的斋坛与天尊殿承载集体斋仪(如为国祈福);殿后法堂用于集体教学;园林(山水)间的精思院、抄经院及金元兴起的圜堂,则专事个体内修。这种“外祷-内修-教授”格局,对应祠庙、山林与书院功能,实为道教“学修一体”理念的物质结晶。
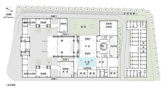
坡观暨上海道教学院的规划布局,即遵循“前观后学,学修一体”这一核心理念。沿中轴线自南向北依次为:山门、三清殿(地下设打坐用圜堂)[一进院];法堂(含各类教室及多功能厅)与藏经馆[二进院];师生宿舍[三进院]。此布局既满足集体共修仪式与个体静修守静之需,亦为道教学术的系统传承提供了物质空间载体。
此布局或可视为对中古道观规制的一种复兴。然而,立足当代宗教实践的具体需求,重新解读历史文献与实物遗存,并将其精髓融汇于当代学院设计之中——此过程本身即具创新价值。
上海道教学院一层平面图
上海道教学院轴侧剖面图
上海道教学院鸟瞰(郑超/摄)
法堂(授度仪式空间)内景,取义《度人经》中举行授度仪式的“黍珠”(陶金/摄)
金·石:建筑材料与形式
方案设计初期,业主即明确提出希望未来尽量减少建筑外立面的维护需求。传统木构建筑为保护结构免受风雨侵蚀,需在木材表面先施披麻挂灰,再行髹漆或彩绘。这导致表层的油漆彩画必须定期“见新”,维护成本较高。但依托当代建筑技术,我们已拥有更多元化的解决方案。
石材构筑的殿宇,是中国现存最古老的本土宗教建筑形式,如山东汉代孝堂山石祠、武氏祠及诸多石阙。在道教传统中,自汉代始,神仙栖居的岩洞即被描述为“石室”,从而在文化层面赋予其建筑意涵。“石殿”(及砖砌无梁殿)的营造传统,亦贯穿于后世道教建筑史之中。
左:山东长清孝堂山汉代郭氏石祠,右:陕西合阳玄武庙明代石殿
自明代起,铜材在道教建筑中受到广泛青睐。这一偏好始于武当山金殿,并通过地方“小武当”网络的建立而得到推广。这种看似较晚出现的传统,实质上是冶金技术与生产力发展后,对早期道经中“金阙”意象的物质呈现。北京大学张剑葳教授对此已有详实考证。
左:湖北武当山明代金殿,右:江苏苏州玄妙观明代小金殿
因此,上海道教学院的建筑表皮材料,从传统的“土木”转向了“金石”体系。
具体而言,山门、三清殿及东西配殿,整体采用“石殿”形式呈现。其檐口的细节设计,借鉴了传统砖石建筑的“叠涩”工艺——即通过砖石逐级出挑形成屋檐结构,并精确控制出挑比例,塑造出视觉上流畅优美的弧线。
左:山东济南九顶塔,右:河北邯郸纸坊玉皇阁
在叠涩设计的推演过程中,我发展出两套网格模块化系统:一套为875mm×875mm模块,专用于三清殿;另一套为700mm×700mm模块,应用于东西配殿及山门(参见附图)。该系统不仅精准控制立面装饰线条的出挑韵律与节奏,更贯穿建筑构件至空间单元的全尺度设计,由此形成极具识别性的线性装饰体系。
笔者手绘叠涩模块草图
区别于传统建筑做法,这套模数系统不仅应用于屋檐,更延伸至垂直维度,塑造立柱的细节形式。这一设计灵感来自我在上海街头常能见到的“装饰艺术”(Art Deco)风格建筑。装饰艺术风格起源于1920年代的法国,以利落的线条与几何纹饰为特征。当时正值上海城市建设高峰期,这一国际风潮融入这一包容性强的新兴都市,进而成为城市街景的组成部分。如今,装饰艺术风格已被视为“摩登上海”的形象符号及海派文化兼容并包特质的物质载体。
在横向与纵向叠涩线条的协同作用下,结合花岗岩石材的拼砌肌理,这四座“仙堂石室”呈现出兼具敦实有力的轮廓,与俊朗清晰的面目。这样的建筑风貌,正契合业主期望通过人才培养所达成的新时代道教风貌。
左:雷士德医学研究院(Henry Lester Institute for Medical Research),1933年,现为上海医药工业研究院;右:上海交通大学工程馆,1932年,邬达克(LaszloHudec)设计
三清殿与东配殿的叠涩细节(郑超/摄)
除四座“石室”主体建筑外,部分墙面装饰采用锡青铜格栅及铜皮。这一做法借鉴了江南地区传统庙宇的门窗与木隔断形式,但以更为利落、整洁且持久的面层效果呈现。
教学楼锡青铜表皮(陶金/摄)
山·水:符号象征
对“山水”意涵的思考贯穿了整个项目周期。 这一思考深受已故荷兰汉学家施舟人(Kristofer M. Schipper)先生关于山水画论述的启发。施先生认为,山水画(以及造园)是最能体现道教精神的艺术形式。该观点在我后续关于洞天福地的研究中得到了印证。
上海道教学院地块紧邻召稼楼古镇。为与古镇风貌协调,设计中保留了传统建筑的大屋顶形式,但进行了最大程度的简化,以形成简洁的屋顶轮廓线。 在建筑体块组织上,延续传统中轴线布局,将教学楼与宿舍楼分为左、中、右三部分,中部高、东西两侧低。通过前后错落的建筑高度,塑造出“层峦叠嶂”般的城市山林景观,呼应古镇边缘的区位,同时也隐喻此处作为“驻鹤”之地的意境。
上海道教学院总图,西侧临水聚落即召稼楼古镇
由召稼楼古镇远眺上海道教学院(陶金/摄)
在福地之中,姿态盘桓的古松与造型奇特的灵石,被视为福地钟灵毓秀的表现,是真气的外在显化。因此,传统园林常植松柏,并栽置太湖奇石,这种布局是描绘洞天福地的典型手法。道观与园林始终构成有机整体,两者密不可分。中国传统园林的核心追求,正是表达洞天与仙岛的意境。自汉武帝甘泉宫、上林苑起,园林便与宫观建筑相伴发展,如同孪生。
在好友顾默修的协助下,鹤坡观于三清殿前两侧选置了一对形态极具神韵的太湖石双峰。 这取义日月的双峰,烘托着大殿法台上象征昆仑的博山香炉——它居于天地中央。太湖石前方植有四株劲松,与湖石相得益彰。松树的选苗与栽植,全赖另一位好友李昕的多次精心挑选。李昕师承扬州治园名家方惠先生,松树下的叠石也出自伊手。由此,奇石、古松与月台上的瑞鹤(解群作品)共同构成了“鹤沙福地”的意象。
上:三清殿庭院北望,下:三清殿庭院南望(郑超/摄)
对山水自然的崇尚理念,同样贯穿于造像设计。 山门下的青龙、白虎二神君,传统形象常为头戴天丁冠、身着铠甲的武士。但在设计初期,雕塑家梁硕便与业主和我达成了回归自然属性的共识。一方面,龙、虎的动物特征被突出;另一方面,青龙神君造型舒展修长,其手臂与腿部肌肉呈现如老树般的肌理,呼应东方“木”的属性;西侧白虎神君则造型紧凑有力,四肢肌肉展现金石般的质感,体现西方“金”的特质。这一设计理念在三清殿内的五方五老像中也得到延续。 每尊神像并非完全的人形,而是从其代表方位及五行属性的自然元素中显化而来:东方始老木化自树根,南方真老化自火焰,西方皇老化自金石,北方玄老化自水浪(中央黄老土隐于法台之中)。三清像的设计同样遵循此理。 造像灵感源于海螺的螺旋纹理,以此表现道气的运化、凝结并最终聚成人形。这基于三清在道教义理中最为虚无与超越的本质——即玄元始三气。
左:白虎神君神像,右:青龙神君神像
三清殿内景:正中为三清神像,右侧为东方始老神像,左侧为北方玄老神像
结语
回顾上海道教学院的设计历程,建筑空间的语言形式本身已非关注核心。 设计的深层着力点,在于精准承载空间内发生的具体仪式活动,并深刻理解其背后的思想逻辑脉络。当这些核心诉求被置于当代国际大都市的语境下,便清晰映射出业主与学院师生所秉持的进取精神与变革意识。
太上曰:“孔德之容,惟道是从。”(《道德经》21章) 对道教义理与仪式空间内在关联的深入领悟,为身为建筑师的我带来了前所未有的创作自由。这使我得以彻底超越孰古孰今、孰中孰西的二元对立思维陷阱,转而扎根于深厚的文化基因,专注于创造性的转化实践。诚如老子所言:“执古之道,以御今之有。”(《道德经》14章)——把握恒常之道,方能从容驾驭当下之实。这一理念,正是本项目空间营造与精神表达的核心依托。
上海道教学院夜景(陶金/摄)
来源:陶金
